大阪の不動産売買はティーシーセカンド 自宅査定・建売用地の即金買取は弊社にお任せください!大阪市全域でオーダーメイドの新築住宅をご提案。

HOME
新着情報
お電話
メール
ブログ
上に戻る
販売物件

自社物件

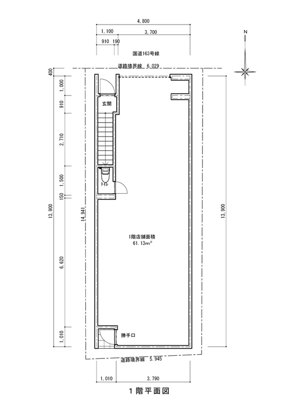
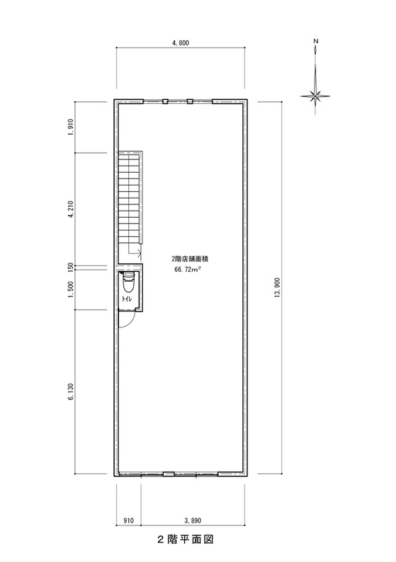
TC新森古市店舗

  • 当社で土地取得から建築までいたしました。飲食、事務所、物販等々可  
  • まずはご相談ください
  • 2025年10月20日現在空きあり

住所

大阪市古市3丁目14-12

交通

今里筋線「新森古市」3分 谷町線「関目高殿」13分

建物構造

木造2階建て 総戸数2戸

賃料

1階27万円(税込み) 2階22万円(税込み)

条件

事務所、重飲食、物販等々可 ご相談ください